- тел.:
+380673608522
/
tov.etatron@ukr.net
Русский
Українською
Дозирующие технологии
Насосы-дозаторы
Насос дозатор реагентов PKX
Аналоговый мембранный насос PKX MA/A
Мембранный насос дозатор PKX MA/AL
Дозирующий насос PKX FT/A работающий от расходомера
Запчасти для насоса дозатора PKX
Дозирующие насосы DLX
Соленоидный аналоговый насос DLX MA/AD
Дозирующий насос DLX MA/MB
Многофункциональный цифровой насос DLX MF/M
Насос DLX VFT/MBB дозирования от расходомера
Дозатор DLX CC/M со входом 4-20мА
Насос дозатор DLX PH-RX/MBB
Дозирующий насос DLX PH-RX-CL/M
Насос дозирующий DLX с электропотреблением 12V / 24V
Запчасти для насоса дозатора DLX
Соленоидные дозирующие насосы eONE
Мембранный насос eONE MA
Насос-дозатор eONE MF пропорционального дозирования
Многофункциональный насос-дозатор eONE PLUS
Насос дозатор eONEB MF
Многофункциональный электромагнитный насос-дозатор eONEB PLUS
Запчасти для насоса дозатора eONE
Электромагнитные дозирующие насосы BT
Электромагнитный дозирующий насос BT MA/AD
Дозирующий насос BT MA/M
Пропорциональный насос BT VFT, работающий от расходомера
Насос дозатор BT PH-RX-CL/M для контроля уровня рН / ОВП / хлора
Цифровой насос дозатор BT MF
Запчасти для насоса дозатора BT
Мембранные соленоидные насосы DLXB
Дозирующий насос DLXB MA/AD
Цифровой насос дозатор DLXB MA/MB
Цифровые насосы DLXB MF/M от сигнала 4-20 mA
Дозатор DLXB VFT/MBB от внешнего импульсного сигнала расходомера
DLXB CC/M
Соленоидные насосы DLXB PH-RX/MBB с контроллером рН / Rx
Дозировочный насос DLXB PH-RX-CL/M с встроенным контроллером рН / Rx / CL
Запчасти для насоса дозатора DLXB
Двойные насосы дозаторы eTWIN
Двойной насос дозатор eTWIN PH-PH
Двойной дозатор eTWIN PH-RX
Насос двойной eTWIN PH-CL
Дозирующие насосы с питанием от солнечной панели
Насос дозатор для вязких жидкостей
Задняя крышка насоса KIT R/C, с ручкой регулировки длины хода пистона мембраны
Аксессуары и запасные части для насосов-дозаторов
Клапана впрыска - Инжекционные клапана
Клапан впрыска реагента A01
Клапан впрыска реагента A02
Инжекционный клапан PP/PVDF
Клапана забора
Клапана забора реагента PP
Донный фильтр PP
Шаровой клапан забора реагента PP/PVDF
Клапан забора со встроенным датчиком уровня реагента
Головки дозирующих мембранных насосов
Головка PP 1-15 л/час - (Тип A)
Головка PP 20 л/час - (Тип B)
Головка PVC 20 бар - (Тип C)
Головка PVC 30-50-80 л - (Тип D)
Головка PVDF AUTO 5-15 л - (Тип F)
Головка PVDF 1-15 л - (Тип E)
Головка PLEXIGLAS 2-15, 20, 50 л - (Тип G)
Головка PVDF eONE 1-15 л/час - (Тип H)
Головка PVDF eONE 20-30 л/час - (Тип I)
Головка PVDF A eONE 1-15 л/час - (Тип L)
Трубка для насосов дозаторов
Трубка ПВХ (PVC) из поливинилхлорида
Трубка ПЭ (PE) из полиэтилена
Трубка ПВДФ (PVDF) из поливинилиденфторида
Ремкомплект к насосу дозатору
Демпфер пульсаций для насосов дозаторов
Перистальтические (шланговые) насосы
Перистальтические шланговые насосы с постоянным потоком
Перистальтический шланговый насос F
Перистальтический насос F-T по таймеру
Запчасти для насоса F
Перистальтические насосы серии B
Перистальтический дозировочный насос B3-V
Перистальтический насос B-F
Перистальтический насос BH3-V
Двойные перистальтические насосы eTWIN
Двойной перистальтический насос eTWIN PH-PH с контроллером pH
Перистальтический двойной насос eTWIN PH-RX с контроллером pH и Rx (ОВП)
Двойной перистальтический насос eTWIN PH-CL с контроллером pH и CL (хлор)
Перистальтический насос B-FCD с датчиком электропроводности
Перистальтические дозирующие насосы ePOOL
Перистальтический насос-дозатор ePOOL PH
Перистальтический насос-дозатор ePOOL RX
Перистальтические насосы PK Pool со встроенным контроллером pH или Rx
Перистальтический насос-дозатор PK Pool pH со встроенным контроллером pH
Перистальтический насос PK Pool Rx со встроенным контроллером Rx
Клапаны впрыска Etatron в магистраль перистальтических насосов
Клапан впрыска А04 для перистальтических насосов
Клапан впрыска реагента A05A, ПП
Клапан впрыска А05 для перистальтических насосов
Шланг для перистальтического насоса
Заборный клапан, донный клапан для перистальтических насосов
Плунжерные насосы
Плунжерные насосы ST-P
Поршневой насос ST-P AA
Насос поршневой ST-P BA
Запчасти для насоса дозатора ST-P
Плунжерный насос P
Плунжерный насос серии P-AA
Плунжерный насос серии P-BA
Аксессуары и запасные части к плунжерным насосам P и ST-P
Сервопривод 4-20 mA к плунжерным насосам P и ST-P
Комплекты клапанов забора и сброса к плунжерным насосам P и ST-P
Перепускные (редукционные) клапана к плунжерным насосам P и ST-P
Гасители пульсаций AISI 316L / ПВХ к плунжерным насосам P и ST-P
Клапана забора реагента к плунжерным насосам P и ST-P
Клапана впрыска реагента к плунжерным насосам P и ST-P
Клапана забора / сброса головки насоса AISI 316L / ПВХ к плунжерным насосам P и ST-P
Комплекты прокладок плунжера к плунжерным насосам P и ST-P
Мембранные моторные насосы
Мембранные моторные насосы ST-D
Насос мембранный ST-D AA
Мембранный насос ST-D CA
Диафрагменный дозирующий насос PVDF ST-D SA
Запчасти для насоса дозатора ST-D
Моторный мембранный насос D
Мембранный насос из нержавеющей стали D-AA
Мембранный насос дозатор D-BA
Мембранный насос дозатор из тефлона PVDF D-SA
Аксессуары и запасные части к мембранным насосам D и ST-D
Сервопривод 4-20 mA к мембранным насосам D и ST-D
Комплекты клапанов забора и сброса к мембранным насосам D и ST-D
Перепускные (редукционные) клапана к мембранным насосам D и ST-D
Гасители пульсаций AISI 316L / ПВХ к мембранным насосам D и ST-D
Клапана забора реагента к мембранным насосам D и ST-D
Клапана впрыска реагента к мембранным насосам D и ST-D
Клапана забора / сброса головки насоса AISI 316L / ПВХ к мембранным насосам D и ST-D
Мембраны для мембранных дозирующих насосов серий D и ST-D
Мембранные насосы с инвертором
Мембранные моторные насосы с взрывозащитой ATEX
Хлоргенераторы для бассейнов (хлораторы или хлоринаторы)
Контроллеры (анализаторы жидкости) рН, Rx (ОВП), CD, хлора CL
Анализаторы жидкостей eCONTROL
Контроллер eCONTROL-1 уровня рН / RedOx / Хлора / PPM
Контроллер eCONTROL-2 уровня рН / RedOx / Хлора / PPM
Высокоточные анализаторы жидкости ELIGERE
Контроллер ELIGERE 1
Контроллер промышленный ELIGERE 01 pH(Rx)
Контроллер хлора eSELECT M1 CL
Контроллер электропроводности eSELECT M1 CD
Контроллер для градирни ELIGERE 01 CD COOL
Анализатор жидкости ELIGERE 2
Электронный анализатор воды ELIGERE 3
Сенсорный контроллер ELIGERE TOUCH
Параметрические контроллеры с креплением на DIN рейку, панель
Цифровой анализатор жидкости eControl RACK уровня рН / Rx (ОВП) / CL (ppm)
Щитовой контроллер ELIGERE SR уровня pH, Rx, хлора CL, проводимости CD
Контроллер eControl DIN уровня рН / ОВП / CL на DIN рейку
Контроллер растворенного кислорода MINIMUS OXYGEN
Контроллеры мутности MINIMUS TURBIDITY
Контроллеры для измерения уровня рН
Контроллеры для измерения уровня Rx (ОВП)
Контроллеры для измерения уровня хлора CL
Контроллеры для измерения уровня электропроводности
Контроллеры для измерения надуксусной кислоты
Датчики и электроды
pH-электроды или датчики pH
Датчик уровня PH, пластик
Электрод для измерения pH с кабелем, стекло
Электрод рН без кабеля, стекло
Соединительные кабели для датчиков pH
Буферные pH растворы для калибровки
Переходный адаптер для pH электрода
Датчики / электроды уровня Rx (RedOx, ОВП)
Датчик уровня Rx (RedOx, ОВП), пластик
Электрод уровня Rx (ОВП) с кабелем, стекло
Датчик уровня Rx без кабеля, стекло
Соединительные кабели для датчиков Rx
Буферные Rx растворы для калибровки
Переходный адаптер для Rx электрода
Датчики хлора CL
Амперометрический держатель с датчиком хлора SCLO 3 HYCHLOR
Датчик хлора SCLO 3 HYCHLOR без корпуса
Датчики свободного хлора, органического и неорганического FIC/FOC
Датчики общего хлора TC
Датчики свободного хлора FIC
Датчики свободного хлора FIC PW для питьевой воды
Комплект шариков PYREX для датчика хлора SCLO3 HYCHLOR
Запасные мембраны для датчиков хлора
Соединительные кабели для датчиков хлора SONDA CL, с BNC разъемом
Кабель с адаптером сигнала для датчика хлора SCLO 3 HYCHLOR, с BNC разъемом
Электролиты для датчика хлора
Датчики электропроводности
Датчик электропроводности CD, PVC (ПВХ)
Датчик проводимости CD, PTFE / ГРАФИТ K=0,6, PT100, кабель 5м
Электрод проводимости CD, SS GR
Датчики надуксусной кислоты PA
Датчик надуксусной кислоты PA
Соединительные кабели для датчиков SONDA PA, с BNC разъемом
Запасные мембраны для датчиков надуксусной кислоты
Электролит для датчика PA
Датчики пероксида водорода HP
Потенциостатический зонд для измерений перекиси водорода
Запасные мембраны для датчиков пероксида водорода
Электролит для датчика HP
Соединительные кабели для датчиков SONDA HP, с BNC разъемом
Датчики озона
Датчик для измерения озона
Запасные мембраны для датчиков озона
Датчики диоксида хлора DCL
Датчик диоксида хлора DCL
Мембранный зонд диоксида хлора DCL
Электролит для датчика DCL
Запасные мембраны для датчиков диоксида хлора
Соединительные кабели для датчиков SONDA DCL, с BNC разъемом
Датчики температуры PT100
Датчик температуры PT100 GLASS с кабелем 5 м.
Датчик температуры PT100 AISI 316 с кабелем 5 м.
Датчик температуры PT100 ПВХ с кабелем 5 м.
Датчики мутности TURBIDITY
Датчик для определения мутности TURBIDITY
Держатель датчиков мутности Ø42 мм, с датчиком потока
Датчики растворенного кислорода
Датчик растворенного кислорода OXYGEN
Держатель датчиков кислорода Ø36 мм, с датчиком потока
Датчики уровня реагента
Датчик уровня с кабелем 2 м
Датчик уровня с кабелем 2 м (eONE/eCONTROL)
Всасывающая трубка с датчиком уровня та клапаном забора
Всасывающая трубка с датчиком уровня та клапаном забора (eONE/eCONTROL)
Бесконтактные индуктивные датчики для насосов дозаторов и контроллеров
Держатели датчиков и электродов (ячейки)
Держатели датчиков для монтажа в систему (IN-LINE)
Стандартный IN-LINE держатель PP 1/2"
Защищенный IN-LINE держатель PVC 1/2"
Защищенный IN-LINE держатель н/ст AISI 304 1/2”
Защищенный погружной держатель PVC 1/2"
Держатели датчиков для монтажа в систему через байпас (OFF-LINE)
Измерительная ячейка OFF-LINE PH-RX
Держатель датчиков OFF-LINE PH-RX (FS)
Держатель датчиков OFF-LINE PH-CL (FS)
Проточный держатель датчиков OFF-LINE PH-RX-CL (FS)
Держатель двух электродов FPM (колба)
KIT комплекты обвязки датчиков
KIT комплект PH-RX
KIT комплект PH-RX (FS)
KIT комплект CL (FS)
KIT комплект PH-CL (FS)
KIT комплект PH-RX-CL (FS)
Запасные части и аксессуары для держателей датчиков
Держатель датчика/клапана зажимной
Переходной ниппель ПВХ 1/2"-3/8"
Проточный фильтр с сетчатым картриджем
Системы дозирования и контроля
Станция дозирования eTWIN GUARD
Система перистальтических дозирующих насосов eTWIN PDP PH/RX
Автоматическая станция дозирования eTWIN GUARD PH/RX
Станция дозирования для бассейна eTWIN GUARD PH/CL
Система eONE GUARD дозирования и контроля уровней PH, Rx и хлора CL
Система дозирования eONE GUARD TOUCH PH/RX/CL/T (SONDA CL)
Системы дозирования POOL GUARD для бассейнов
Система измерения свободного хлора и дозировка хлора в воду CHLORO SYSTEM
Автоматическая станция дозирования pH - PH CONTROL 1
Автоматическая станция контроля и дозирования PH и RX - POOL GUARD 1 PH/RX
Система дезинфекции воды POOL GUARD 3 PH/CL (SCLO3 HYCHLOR)
Система дезинфекции воды - POOL GUARD 3 PH/CL (SONDA CL)
Профессиональная система дозации и контроля POOL GUARD MAX PH/RX/T/CL free/CL total (SONDA CL)
Автоматическая станция обработки воды POOL TOP GUARD PH/RX/CL/T
Система автоматического дозирования POOL GUARD MINI PH/RX
Cooling Tower Panel система контроля и дозировки уровня биоцида и ингибитора в воде башенных охладителей
Контроль уровня рН
Автоматическая станция дозировки и контроля уровня рН
Станция дозировки и контроля уровня рН
Станции дозации с перистальтическими насосами
Станция дозирования химии для бассейна - POOL GUARD MICRO PH/RX
Станция дозации и контроля уровня рН - ePOOL PH
Станция дозации и контроля уровня Rx (ОВП, Redox) - ePOOL RX
Станция обработки воды - POOL eTWIN PH/CL (SCLO3 HYCHLOR)
BIOCLEAN CONTROL
Станция контроля качества обратной воды CTC
Системы контроля и управления дозированием
Контроллер хлора E - Control
Блок управления PH-RX
Измерение уровня рН и ОВП (RX) воды POOL GUARD 2 PH/RX
Система регулирования и контроля PH-RX CONTROL PANEL
Система регулирования и контроля PH-RX-F CONTROL PANEL
Система регулирования и контроля уровня свободного хлора CL-F CONTROL PANEL
Система контроля и регулирования PH-CL-F CONTROL PANEL
Система контроля и регулирования уровней PH, RX и свободного хлора PH-RX-CL-F CONTROL PANEL
Система регулирования и контроля уровней PH, RX и остаточного хлора CL(A)-PH-RX-F CONTROL
Системы контроля показателей диоксида хлора
Миксеры, мешалки химические
Высокооборотные химические мешалки AF
Мешалка пропеллерная AGV
Низкооборотные мешалки AGR-V
Погружные мешалки
Ручной миксер (мешалка) MANUALE
Станции дозирования и приготовления реагентов
Станция коррекции PH
Станция пропорционального дозирования реагента
Станция постоянного дозирования
Станция дозирования гипохлорита
Станция приготовления и дозирования флокулянта
Станция дозирования коагулянта
Станция постоянного дозирования 0,1 - 1,0 л/час, 60 л.
Дозирующая установка DUTRION
Блок приготовления раствора
Насос для протравителя
Система подготовки воды
Комплексы реагентного хозяйства (КРХ)
Комплексы дозирования
Станция дозирования реагентов от импульсного расходомера
Станция дозирования химических реагентов DLXB
Станции приготовления химических растворов
Станции дозирования известкового молока
Станция дозирования антискаланта E-DLX
Станция дозирования биоцида
Станция обеззараживания воды
Резервуары, емкости, защитные поддоны, суппорта (пластины)
Резервуары, емкости из полиэтилена
Защитные резервуары (поддоны)
Суппорта (пластиковые пластины)
Импульсные счетчики, водомеры, расходомеры
Резьбовой импульсный расходомер
Фланцевый импульсный счетчик
Резьбовой импульсный счетчик для слабых кислот, щелочей
Электромагнитный расходомер
Разветвитель сигнала для пропорциональных насосов
Дозирующие насосы
Химические насосы
Насосы с магнитной муфтой
Насос с магнитной муфтой CM MAG-P
Центробежные мини-насосы с магнитным приводом MINI COMPASS
Центробежный насос с магнитным приводом CM MAG-M
Футерованный герметичный насос C MAG-PL
Футерованный насос CL MAG-M нормированный по DIN EN 22858 - ISO 2858
Консольный химический насос CN MAG-M
Полупогружной насос CV MAG-P
Мембранные насосы, диафрагменные насосы
Бочковые насосы NEPTUNE
Ручные бочковые насосы
Ручной насос из полипропилена N-04
Ручной роторный насос PVDF N-08
Ручной насос N-13 для дизельного топлива, мазута, масел
Пожарный ручной насос N-16
Насос для еврокуба N-180
Насос для химических продуктов N-280
Бочковый насос для перекачки взрывоопасных веществ N-460
Вертикальные полупогружные химические насосы TYPHOON
Вертикальные химические насосы TY6
Вертикальные полупогружные насосы TY10
Полупогружные химические насосы TY15
Вертикальные центробежные насосы TY20
Полупогружные химические насосы TY25
Химические вертикальные насосы TY30
Химические полупогружные насосы TY40
Центробежные насосы с торцевым уплотнением
Металлический центробежный насос с торцевым уплотнением CN SEAL-M
Футерованный насос с торцевым уплотнением CL SEAL-M
Вихревые турбинные насосы
Вихревой насос из нержавейки T ECO MAG-M
Вихревый насос T MAG-M с магнитной муфтой
Насос химический вихревой T MAG-P
Многоступенчатый вихревой насоc CT MAG-M
Центробежный вихревой CT MAG-MS
Открыто-вихревые насосы
Открыто-вихревой многоступенчатый насос SC MAG-M
Шиберные насосы
Шиберный насос V IN LINE
Лопастный насос V MODULAR
Лопастной насос VP
Насосы с полым диском
Насос с полым диском MHV MAG-M
Перистальтические насосы
Перистальтические шланговые насосы AS
Перистальтический насос AS FX с фиксированной производительностью
Перистальтический насос AS VX регулируемая производительность
Перистальтический насос AS IMX со встроенным инвертором
Перистальтический насос AS IX с частотным преобразователем
Высоконапорные перистальтические насосы ASP
Промышленные перистальтические насосы ATR
Насосы Флюмак (Fluimac)
Мембранные пневматические насосы
Мембранный насос с пневматическим приводом
Пневматический мембранный насос Fluimac Phoenix P8
Мембранный пневматический насос Fluimac Phoenix P20
Пневматический диафрагменный насос Fluimac Phoenix P35
Диафрагменный пневматический насос Fluimac Phoenix P55
Самовсасывающий мембранный насос Fluimac Phoenix P60
Мембранный насос Fluimac Phoenix P90
Воздушный мембранный насос Fluimac Phoenix P170
Мембранный воздушный насос Fluimac Phoenix P252
Мембранный насос пневматический Fluimac Phoenix P400
Пневматический мембранный насос Fluimac Phoenix P700
Пневматический диафрагменный насос Fluimac Phoenix P1000
Пищевой насос FOOD
Пищевой мембранный насос FOOD QF8
Пищевой диафрагменный насос FOOD QF20
Пищевой пневматический насос FOOD QF35
Пищевой насос FOOD QF55
Пищевой насос объемного типа FOOD QF110
Гигиенический насос FOOD QF170
Пищевой объемный насос FOOD QF350
Насос FOOD QF550 в пищевом исполнении
Пищевой мембранный насос FOOD QF700
Диафрагменный пищевой насос FOOD QF1000
Двойной мембранный насос TWIN
Демпфер пульсаций Damper
Диафрагменный демпфер пульсаций Damper 20
Диафрагменный демпфер Damper 25
Демпфер пульсации Damper 40
Гаситель пульсаций Damper 50
Применение
Насосы для орошения
Полив голубики
Фертигация почвы
Насосы для полива
Центробежные насосы для КАС
Мешалки и миксеры для КАС, удобрений и пестицидов
Промышленные гидропонные системы
Автоматическая станция дозирования и регулирования водородного показателя pH
Насосы для фертигации
Насос для минеральных удобрений
Контроль EC / Контроль удобрения
Оборудование для гидропоники
Контроллер для теплиц, гроубоксов, гидропоники
Насос для гидропоники
Оборудование для бассейнов
Станции дозирования для бассейнов
Насосы для бассейнов с фильтром
Насосы дозаторы для альгицида
Насосы дозаторы для коагулянта
Озонирование воды та УФ ультрафиолетовые бактерицидные системы для бассейна
Насосы для кислоты
Насос для соляной кислоты
Насос для уксусной кислоты (этановой кислоты)
Насос для серной кислоты
Насос для азотной кислоты
Насос для лимонной кислоты
Насос для щавелевой кислоты
Насос для борной кислоты
Насос для винной кислоты
Насос для фосфорной кислоты (ортофосфорной кислоты)
Насос для олеиновой кислоты
Насос для бензойной кислоты
Насос для молочной кислоты
Насос для яблочной кислоты
Насос для надуксусной кислоты (пероксиуксусной кислоты, перуксусной кислоты)
Насос для пальмитиновой кислоты
Насос для перхлоратной кислоты
Насос для хромовой кислоты
Насосы для щелочи
Насосы для гидроксида натрия, каустической соды или каустика
Насосы для гипохлорита натрия
Насос для гидроксида бария
Насос для гидроксида калия
Насос для гидроксида кальция
Насос для гидроксида аммония
Насос для гидроксида алюминия
Насос для растворителя
Насос для автомойки
Насосы дозаторы и контроллеры в обработке сточных вод
Насосы дозаторы на локальных очистных сооружениях (ЛОС)
Насос подачи флокулянта в флокулятор дождевых и производственных вод
Дозирующие насосы для сульфата алюминия
Защита котельного оборудования и сетей
Насосное оборудование для спиртовых заводов
Схема подачи кислоты плунжерным насосом дозатором при CIP-промывке колонны мощностью 3000 дал/сутки
Схема дозирования ферментного препарата ά-амилазы при гидроферментативной обработке замеса на спиртовом заводе производительностью 3000 дал/сутки
Схема дозирования ферментного препарата глюкоамилазы при гидроферментативной обработке сусла на спиртовом заводе производительностью 3000 дал/сутки
Схема подачи серной кислоты при оптимизации уровня рН в дрожегенераторе на спиртовом заводе производительностью 3000 дал/сутки
Система дозирования серной или соляной кислоты при подкислении мелассы
Насос дозатор для денатурата
Дозирование формалина
Насос для спирта
Насосы дозаторы для обезжелезивания воды
Насосы для дозирования гипохлорита натрия (NaCl)
Насосы для дозирования окислителей
Насосы дозаторы для водоподготовки
Технологическая схема дозирования гипохлорита натрия (NaCL) и контроля дозы остаточного хлора
Технологическая схема дозирования гипохлорита натрия (NaCL) пропорционально расходу воды
Технологическая схема автоматизации дозирования гипохлорита натрия (NaCL) пропорционально расходу воды и дозы остаточного хлора
Технологическая схема химической деаэрации воды и контроля рН
Насос для флокулянта
Водоподготовка для паровых котлов
Насос для коагулянта
Дозатор для обратного осмоса
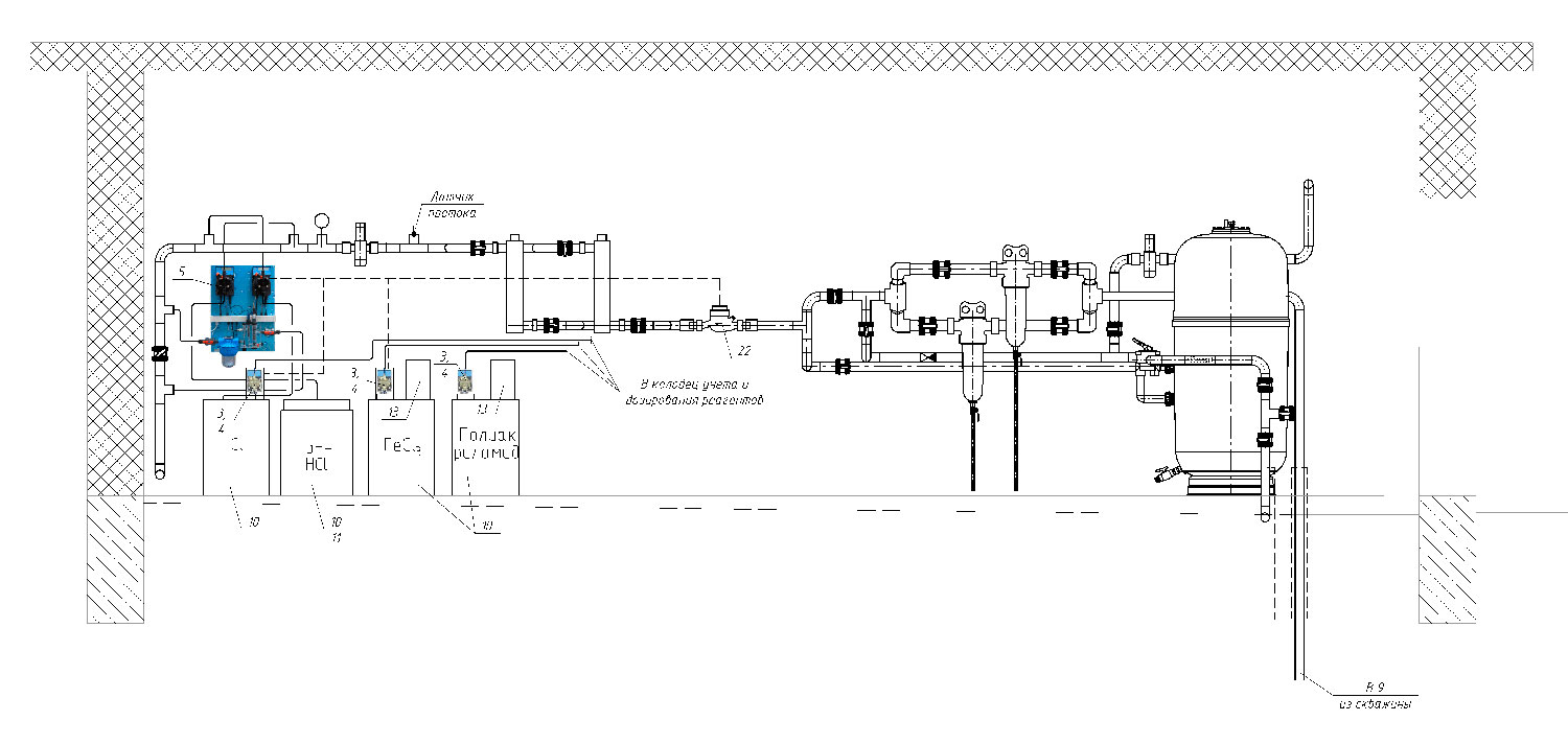
Принципиальная схема химводоочистки и водоснабжения животноводческого комплекса
Установки приготовления и дозирования реагентов для очистки воды
Насос дозатор для антискаланта
Насосы дозаторы для производства сахара (сахарные заводы)
Насосы для пеногасителя
Насосы для дезинфектанта
Насосы для коагулянта (гидроксида алюминия)
Насосы для ощелачивания (каустической соды)
Насосы для ингибитора
Насосы дозаторы в производстве алкогольных и безалкогольных напитков
Насос для диатомовой земли
Дозирование консервантов
Дозирование активаторов брожения
Насос для пищевой промышленности
Обработка овощей и фруктов перед замораживанием
Насос для пищевых жидкостей
Насосы для химии
Насос для гальваники
Герметичный насос с магнитной муфтой
Насос для нефтехимической промышленности
Насос для перекачки сжиженных углеродов
Насос для фреона
Насос для производства бумаги
Насосы для фармацевтики
Насос дозатор спирта
Мешалка для антисептика
Насосы дозаторы в строительной отрасли
Насос дозатор пластификатора
Насосы для пенообразователя
Контакты
Принципиальная схема химводоочистки и водоснабжения животноводческого комплекса
Применение
›
Насосы дозаторы для водоподготовки
› Принципиальная схема химводоочистки и водоснабжения животноводческого комплекса
1